Descriere apartament
Apartament 3 camere, 2 bai, 2 balcoane, confort 1A, decomandat, zona MarasestiApartamentul este situat la etajul parter, cu o suprafata utila de 73 mp plus balcon de 8 mp intr-un bloc de locuinte cu structura P+4E construit in anul 1982.
Are finisaje si dotari ca: usi interioare MDF, incalzirea se face cu centrala proprie, trei unitati de aer conditionat, beci, boxa.
Se vinde complet mobilat si utilat.
Caracteristici
- Zona: Marasesti
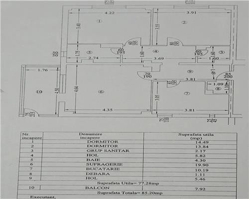
- Suprafata utila: 78 mp
- Confort: 1
- Compartimentare: decomandat
- Etaj: parter/4
- Numar Bai: 2
- Numar Balcoane: 1
- Numar Camere: 3
- An Constructie: 1982
Caracteristici generale
- Aer Conditionat: Da
- Balcoane: Termopan
- Bucatarie: Mobilata Utilata Da
- Calorifere: Da
- Clasa Energetica: B
- Contorizare: Apometre Contor electric Contor gaz
- Destinatie: Locuinta/Birou
- Dotari: Aer Conditionat Pivnita Boxa WC Serviciu Masina rufe Frigider
- Electrocasnice: Masina de spalat rufe Aragaz Frigider
- Ferestre: PVC
- Geam baie: Da
- Incalzire: Centrala proprie
- Interfon: Interfon
- Izolatii termice: Exterior
- Mobilat: Complet
- Pereti: Lavabil Faianta
- Podele: Parchet Gresie
- Stadiu Finisare: Finalizat
- Structura Casa: Beton
- Tip Bloc: Bloc
- Tip Structura Bloc: Cadre
- Usa intrare: Metal
- Usi: Din Lemn
- Vecinatati Spatii: Autobuz Zona comerciala Banca Supermarket Intersectie circulata Benzinarie Parc Mall Scoala/gradinita
- Zidarie: BCA



















